Photo Gallery
$549,000
10380 LONGSHORE ROAD 77, Placida, Florida, 33946
Price Improvement!! Own your sliver of paradise with this
10380 LONGSHORE ROAD 77, Placida, Florida, 33946
Accessibility Features
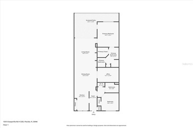
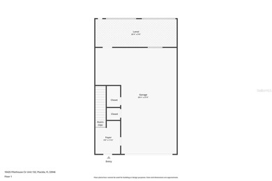
Property Details
Location
Contact Information
Mortgage Calculator
About Placida
Ad Statistics
Listing Information
Disclaimer
Compliance
Copyright © 2025 Stellar MLS. All rights reserved. All information provided by the listing agent/broker is deemed reliable but is not guaranteed and should be independently verified.
Request Information
Start advertising today
Explore Similar Properties
$543,000
10300 Tarpon Landings Terrace unit: 4, Placida, FL, 33946
Welcome to The Landings at Coral Creek! This highly desirable
Listed by Lise Wosick at EXP Realty LLC
941-677-2620 • LPWrealestate@gmail.com
$498,000
10311 LANDS END CIRCLE 16, Placida, FL, 33946
One or more photo(s) has been virtually staged. This impeccably
Listed by Katie Smallwood, PA at Island Life Real Estate LLC
941-468-1189 • kesmallwood@kw.com
