Photo Gallery
$3,945,000
2824 Coconut Ave 2824, Miami, Florida, 33133
This brand new, luxurious 3 story townhome is perfectly situated
2824 Coconut Ave 2824, Miami, Florida, 33133
Accessibility Features
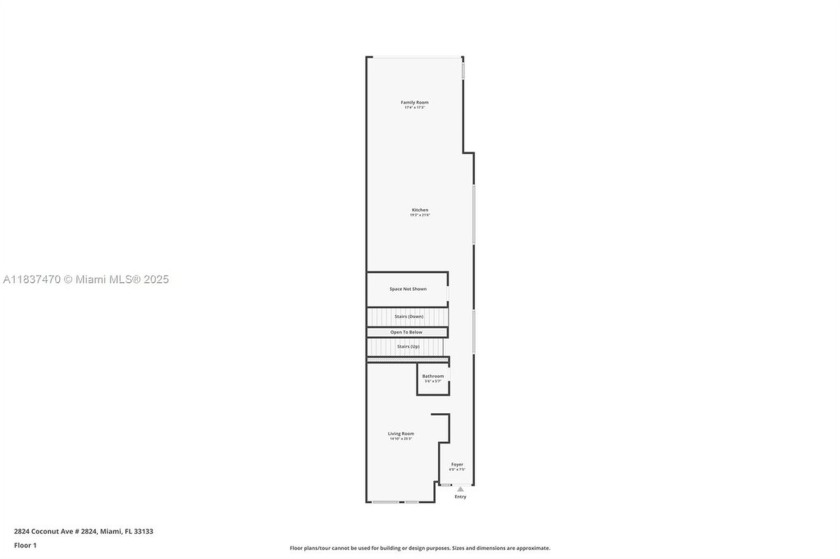
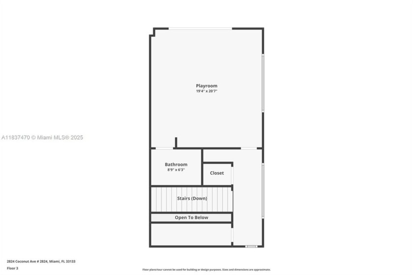
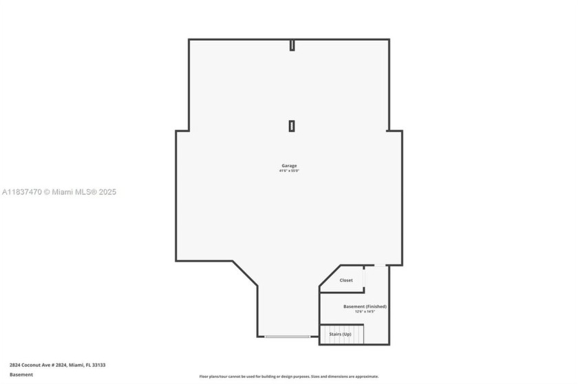
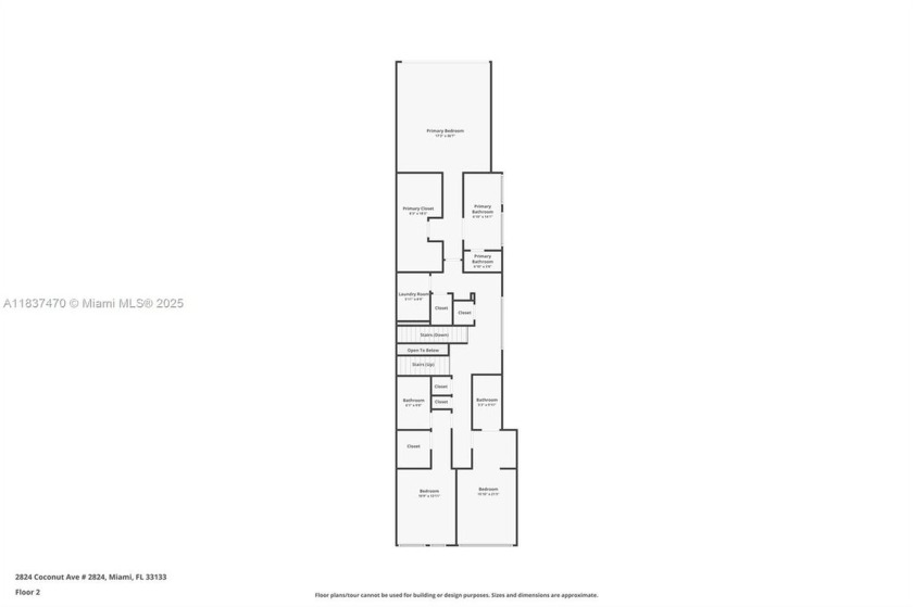
Property Details
Location
Contact Information
Mortgage Calculator
About Miami
Ad Statistics
Listing Information
Disclaimer
Compliance
Copyright © 2025 Miami Association of REALTORS®. All rights reserved. All information provided by the listing agent/broker is deemed reliable but is not guaranteed and should be independently verified.
Request Information
Start advertising today
Explore Similar Properties
$3,450,000
480 NE 31st St PH5303, Miami, FL, 33137
Beautiful Edgewater penthouse with incredible Biscayne Bay views
Listed by Leila Abou Jokh at Related ISG Realty
954-330-8039
$3,450,000
2655 S Bayshore Dr 1412, Miami, FL, 33133
For those who appreciate the art of living well, every aspect of
Listed by Lindsay McMinn at BHHS EWM Realty
305-769-8465
