Buy
  • Alabama Alaska Arizona Arkansas California Colorado Connecticut Delaware Florida Georgia Hawaii Idaho Illinois Indiana Iowa Kansas Kentucky Louisiana Maine Maryland Massachusetts Michigan Minnesota Mississippi Missouri Montana Nebraska Nevada New Hampshire New Jersey New Mexico New York North Carolina North Dakota Ohio Oklahoma Oregon Pennsylvania Rhode Island South Carolina South Dakota Tennessee Texas Utah Vermont Virginia Washington West Virginia Wisconsin Wyoming
    Canada Listings (192)
    Mexico Listings (16)
    Advanced Search
Sell Find an Agent
BarrierFreeHome.com BarrierFreeHome.com
My Account
  • Login
  • Manage My Real Estate Ads
  • Manage My Search Profile / Auto Notify
  • My Account Info
  • Manage My Favorites
Advertise Join
  • Buy
  • Sell
  • Find an Agent
  • My Account
    • Login
    • Manage My Real Estate Ads
    • Manage My Search Profile / Auto Notify
    • My Account Info
    • Manage My Favorites
  • Advertise
  • Join
Price
-
0
$100,000
$100,000+
$200,000
$200,000+
$300,000
$300,000+
$400,000
$400,000+
$500,000
$500,000+
$600,000
$600,000+
$700,000
$700,000+
$800,000
$800,000+
$900,000
Any Price
Any Price
Beds & Baths
-
-
Property Type
Sale Status
More Filters
-
-
-
-
Advanced Search
Home Florida Daytona Beach

Daytona Beach

Read more
Showing 81-100 of 172 Homes For Sale
For Sale
Property image
Property image
Property image
Property image
Property image
Property image
Property image
Property image
Property image
Property image
Property image
Property image
Property image
Property image
Property image
Property image
Property image
Property image
Property image
Property image
Property image
Property image
Property image
Property image
Property image
Property image
Property image
Property image
Property image
Property image
Property image
Property image
Property image
Property image
Property image
Property image
Property image
Property image
Property image
Property image
Property image
Property image
Property image
Property image
Property image
Property image
Property image
Property image
Property image
Property image
Property image
Property image
Property image
Property image
Property image
Property image
Property image
Property image
Property image
Property image

$299,000

2 Beds | 2.0 Baths | 1,210 Sqft

925 N Halifax Avenue unit: 901, Daytona Beach, FL, 32118

DON'T MISS THIS beautifully furnished & totally updated spacious 2 bedroom, 2 full bath corner unit with spectacular views from every window of the river and views of the ocean! Relax on your large...

Ad#: 7014940
Added: 12/23/2025 • Updated: 01/02/2026
Ad#: 7014940 • Added: 12/23/2025 • Updated: 01/02/2026
For Sale
Property image
Property image
Property image
Property image
Property image
Property image
Property image
Property image
Property image
Property image
Property image
Property image
Property image
Property image
Property image
Property image
Property image
Property image
Property image
Property image

$299,000

1 Beds | 2.0 Baths | 1,265 Sqft

1 OCEANS WEST BOULEVARD 10B4, Daytona Beach, FL, 32118

10th-Floor Daytona Beach Shores Condo with Ocean & Intracoastal Views! Looking for a condo where the views matter as much as the lifestyle? This 10th-floor unit at 1 Oceans West Blvd, Unit 10B4 offers...

Ad#: 7169944
Added: 01/21/2026 • Updated: 01/21/2026
Ad#: 7169944 • Added: 01/21/2026 • Updated: 01/21/2026
For Sale
Property image
Property image
Property image
Property image
Property image
Property image
Property image
Property image
Property image
Property image
Property image
Property image
Property image
Property image
Property image
Property image
Property image
Property image
Property image
Property image
Property image
Property image
Property image
Property image
Property image
Property image
Property image
Property image
Property image
Property image
Property image
Property image
Property image
Property image
Property image
Property image
Property image
Property image
Property image
Property image
Property image
Property image
Property image
Property image
Property image
Property image
Property image
Property image
Property image
Property image
Property image
Property image
Property image
Property image
Property image
Property image
Property image
Property image
Property image
Property image

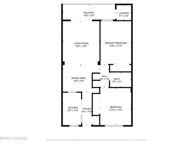
$289,000

2 Beds | 2.0 Baths | 1,689 Sqft

231 Riverside Drive unit: 304-1, Daytona Beach, FL, 32117

Welcome to resort-style living in this elegant 2-bedroom, 2-bathroom condo at Marina Grande on the Halifax. Designed for both comfort and style, this residence features an open-concept layout with a...

Ad#: 5896290
Added: 03/09/2025 • Updated: 10/15/2025
Ad#: 5896290 • Added: 03/09/2025 • Updated: 10/15/2025
For Sale
Property image
Property image
Property image
Property image
Property image
Property image
Property image
Property image
Property image
Property image
Property image
Property image
Property image
Property image
Property image
Property image
Property image
Property image
Property image
Property image
Property image
Property image
Property image
Property image
Property image
Property image
Property image
Property image
Property image
Property image
Property image
Property image
Property image
Property image
Property image
Property image
Property image
Property image
Property image
Property image
Property image
Property image
Property image
Property image
Property image
Property image
Property image
Property image
Property image
Property image
Property image
Property image

$289,000

2 Beds | 2.0 Baths | 1,062 Sqft

2987 S Atlantic Avenue unit: 206, Daytona Beach, FL, 32118

Experience premium beach-front living in Daytona Beach Shores! Discover coastal elegance in this 2-bedroom, 2-bath residence on the second floor of Oceans Five, offering ocean views and the breezy...

Ad#: 6761720
Added: 10/25/2025 • Updated: 10/26/2025
Ad#: 6761720 • Added: 10/25/2025 • Updated: 10/26/2025
For Sale
Property image
Property image
Property image
Property image
Property image
Property image
Property image
Property image
Property image
Property image
Property image
Property image
Property image
Property image
Property image
Property image
Property image
Property image
Property image
Property image
Property image
Property image
Property image
Property image

$279,900

2 Beds | 2.0 Baths | 1,020 Sqft

2711 N Halifax Avenue unit: 366, Daytona Beach, FL, 32118

Your search is over this 2 Bedroom 2 Bath DIRECT riverfront condo is move-in ready. You will be amazed by the breathtaking sunsets & views of the intracoastal waterway! Sit on your balcony and watch...

Ad#: 6938261
Added: 12/10/2025 • Updated: 12/17/2025
Ad#: 6938261 • Added: 12/10/2025 • Updated: 12/17/2025
For Sale
Property image
Property image
Property image
Property image
Property image
Property image
Property image
Property image
Property image
Property image
Property image
Property image
Property image
Property image
Property image
Property image
Property image
Property image
Property image
Property image

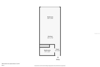
$277,900

1 Beds | 2.0 Baths | 691 Sqft

313 S Atlantic Avenue unit: 501, Daytona Beach, FL, 32118

Fountain Beach Resort is located directly on ''The Worlds Famous Beach''. Amenities galore. Start your day off with a walk on the beach. Enjoy the pool area or stop by the Oasis Tiki Bar and...

Ad#: 7202859
Added: 01/29/2026 • Updated: 02/24/2026
Ad#: 7202859 • Added: 01/29/2026 • Updated: 02/24/2026
For Sale
Property image
Property image
Property image
Property image
Property image
Property image
Property image
Property image
Property image
Property image
Property image
Property image
Property image
Property image
Property image
Property image
Property image
Property image
Property image
Property image

$277,900

1 Beds | 2.0 Baths | 691 Sqft

313 S ATLANTIC AVENUE 501, Daytona Beach, FL, 32118

Fountain Beach Resort is located directly on ''The Worlds Famous Beach''. Amenities galore. Start your day off with a walk on the beach. Enjoy the pool area or stop by the Oasis Tiki Bar and...

Ad#: 7202348
Added: 01/29/2026 • Updated: 02/06/2026
Ad#: 7202348 • Added: 01/29/2026 • Updated: 02/06/2026
For Sale
Property image
Property image
Property image
Property image
Property image
Property image
Property image
Property image
Property image
Property image
Property image
Property image
Property image
Property image

$249,900

2 Beds | 2.0 Baths | 1,058 Sqft

2800 N Atlantic Avenue unit: 1102, Daytona Beach, FL, 32118

This well-maintained 2-bedroom, 2-bath residence features a desirable south-facing exposure with water and Intracoastal views, offering abundant natural light throughout the living spaces. The...

Ad#: 6967245
Added: 12/17/2025 • Updated: 12/17/2025
Ad#: 6967245 • Added: 12/17/2025 • Updated: 12/17/2025
For Sale
Property image
Property image
Property image
Property image
Property image
Property image
Property image
Property image
Property image
Property image
Property image
Property image

$249,900

1 Beds | 1.0 Baths | 510 Sqft

2301 S Atlantic Avenue unit: 327, Daytona Beach, FL, 32118

Ocean Front Condo, very rare opportunity! Beach Front Property in the Historic Daytona Beach Location with A fantastic View! This Desirable Condo with Balcony that overlooking the Pool, Restaurant...

Ad#: 5152717
Added: 07/12/2024 • Updated: 01/02/2026
Ad#: 5152717 • Added: 07/12/2024 • Updated: 01/02/2026
For Sale
Property image
Property image
Property image
Property image
Property image
Property image
Property image
Property image
Property image
Property image
Property image
Property image
Property image
Property image
Property image
Property image
Property image
Property image
Property image
Property image
Property image
Property image
Property image
Property image
Property image
Property image
Property image
Property image
Property image
Property image
Property image
Property image
Property image
Property image
Property image
Property image
Property image
Property image
Property image
Property image
Property image
Property image
Property image
Property image
Property image
Property image
Property image
Property image
Property image
Property image
Property image
Property image
Property image
Property image
Property image
Property image
Property image

$249,000

3 Beds | 2.0 Baths | 1,295 Sqft

100 Silver Beach Avenue unit: 328, Daytona Beach, FL, 32118

PRICE IMPROVEMENT- MILLION DOLLAR VIEWS! This rare opportunity to own a DIRECT water view 3 BED 2 FULL BATH in the sought after complex of RIVER PLACE 100 located on the intracoastal. This 3rd floor...

Ad#: 6537992
Added: 08/20/2025 • Updated: 02/20/2026
Ad#: 6537992 • Added: 08/20/2025 • Updated: 02/20/2026
For Sale
Property image
Property image
Property image
Property image
Property image
Property image
Property image
Property image
Property image
Property image
Property image
Property image
Property image
Property image
Property image
Property image
Property image
Property image
Property image
Property image
Property image
Property image
Property image
Property image
Property image
Property image
Property image
Property image
Property image
Property image
Property image
Property image
Property image
Property image
Property image
Property image
Property image
Property image
Property image
Property image
Property image
Property image
Property image
Property image
Property image

$249,000

3 Beds | 3.0 Baths | 1,130 Sqft

1909 S ATLANTIC AVENUE 717, Daytona Beach, FL, 32118

UNIQUE 3 UNITS DEEDED AS 1 AT DESIREABLE OCEANSIDE INN (717,718,719). ALL HAVE OCEAN VIEWS FROM *THE WORLD'S MOST FAMOUS BEACH*. CURRENTLY ALL UNITS ARE TENANT OCCUPIED. LOCATED IN THE HIGHLY SOUGHT...

Ad#: 7049097
Added: 12/30/2025 • Updated: 02/05/2026
Ad#: 7049097 • Added: 12/30/2025 • Updated: 02/05/2026
For Sale
Property image
Property image
Property image
Property image
Property image
Property image
Property image
Property image
Property image
Property image
Property image
Property image
Property image
Property image
Property image
Property image
Property image
Property image
Property image
Property image
Property image
Property image
Property image
Property image
Property image
Property image
Property image
Property image
Property image
Property image
Property image
Property image
Property image
Property image
Property image
Property image
Property image

$248,000

2 Beds | 1.0 Baths | 1,033 Sqft

145 N Halifax Avenue unit: 704, Daytona Beach, FL, 32118

Fully upgraded condo unit offering the perfect blend of style, comfort, and/or income potential. As soon as you enter, you'll feel the tranquil coastal vibe that makes this property an ideal vacation...

Ad#: 6634145
Added: 09/18/2025 • Updated: 12/11/2025
Ad#: 6634145 • Added: 09/18/2025 • Updated: 12/11/2025
For Sale
Property image
Property image
Property image
Property image
Property image
Property image
Property image
Property image
Property image
Property image
Property image
Property image
Property image
Property image
Property image
Property image
Property image
Property image
Property image
Property image
Property image
Property image
Property image
Property image

$242,000

4 Beds | 2.0 Baths | 2,162 Sqft

1219 David Drive, Daytona Beach, FL, 32117

Roof and AC have been replaced within the past 5 years! This home is ready for your updates and features finished 758 sq ft. garage apartment with Handicap access shower, full bath, kitchenette and...

Ad#: 6671229
Added: 09/29/2025 • Updated: 01/07/2026
Ad#: 6671229 • Added: 09/29/2025 • Updated: 01/07/2026
For Sale
Property image
Property image
Property image
Property image
Property image
Property image
Property image
Property image
Property image
Property image
Property image
Property image
Property image
Property image
Property image
Property image
Property image
Property image
Property image
Property image
Property image
Property image
Property image
Property image
Property image
Property image
Property image
Property image
Property image
Property image
Property image

$240,000

1 Beds | 1.0 Baths | 796 Sqft

2800 N Atlantic Avenue unit: 611, Daytona Beach, FL, 32118

Newly renovated and painted. All new Vinyl wood flooring, new 5'' baseboards, newer sliders and newer bathroom. Kitchen to be renovated soon but is perfectly functional in the meantime! This ocean...

Ad#: 5970328
Added: 03/27/2025 • Updated: 03/27/2025
Ad#: 5970328 • Added: 03/27/2025 • Updated: 03/27/2025
For Sale
Property image

$237,000

1 Beds | 1.0 Baths | 733 Sqft

2700 N Atlantic Avenue unit: 920, Daytona Beach, FL, 32118

LARGEST ONE BEDROOM UNIT IN THE RESORT WITH OCEAN AND CITY VIEWS FROM EITHER ONE OF THE 2 BALCONIES. THE HUGE BATHROOM HAS A WALK-IN-SHOWER AND DOUBLE SINK VANITY. THIS FULLY FURNISHED (SLEEPING...

Ad#: 5017059
Added: 06/04/2024 • Updated: 09/03/2025
Ad#: 5017059 • Added: 06/04/2024 • Updated: 09/03/2025
Sale Pending
Property image
Property image

$230,000

0 Beds | 1.0 Baths | 503 Sqft

500 N Atlantic Avenue unit: 2-In, Daytona Beach, FL, 32118

Fresh Atlantic air meets the chic NYC loft in this oceanfront studio Seaside Salon in 500 Atlantic Condominiums, Daytona Beach's newest, tallest, and most exclusive tower. Bask in the ocean breeze on...

Ad#: 5065895
Added: 06/17/2024 • Updated: 06/17/2024
Ad#: 5065895 • Added: 06/17/2024 • Updated: 06/17/2024
Sale Pending
Property image
Property image

$230,000

0 Beds | 1.0 Baths | 503 Sqft

500 N Atlantic Avenue unit: 2-Hn, Daytona Beach, FL, 32118

Fresh Atlantic air meets big-city-loft-style in this oceanfront studio Seaside Salon in 500 Atlantic Condominium, Daytona Beach's newest, tallest, and most exclusive tower. Bask in the ocean breeze on...

Ad#: 1572719
Added: 06/07/2021 • Updated: 06/17/2024
Ad#: 1572719 • Added: 06/07/2021 • Updated: 06/17/2024
Sale Pending
Property image
Property image

$230,000

0 Beds | 1.0 Baths | 503 Sqft

500 N Atlantic Avenue unit: 2-Hs, Daytona Beach, FL, 32118

Fresh Atlantic air meets the chic NYC loft in this oceanfront studio Seaside Salon in 500 Atlantic Condominiums, Daytona Beach's newest, tallest, and most exclusive tower. Bask in the ocean breeze on...

Ad#: 5065881
Added: 06/17/2024 • Updated: 06/17/2024
Ad#: 5065881 • Added: 06/17/2024 • Updated: 06/17/2024
For Sale
Property image
Property image
Property image
Property image
Property image
Property image
Property image
Property image
Property image
Property image
Property image
Property image
Property image
Property image
Property image
Property image
Property image
Property image
Property image
Property image
Property image
Property image
Property image
Property image
Property image
Property image
Property image
Property image
Property image
Property image
Property image
Property image
Property image
Property image
Property image
Property image
Property image
Property image
Property image
Property image
Property image
Property image
Property image

$230,000

2 Beds | 2.0 Baths | 1,038 Sqft

1224 S Peninsula Drive unit: 505, Daytona Beach, FL, 32118

Welcome to your Dream Riverfront Living! This beautifully updated 2 bedroom, 2 bath condo offers a perfect blend of comfort, convenience, and stunning water views. Whether you're looking for a...

Ad#: 6641701
Added: 09/19/2025 • Updated: 10/14/2025
Ad#: 6641701 • Added: 09/19/2025 • Updated: 10/14/2025
For Sale
Property image
Property image
Property image
Property image
Property image
Property image
Property image
Property image
Property image
Property image
Property image
Property image
Property image
Property image
Property image
Property image
Property image
Property image
Property image
Property image

$229,000

2 Beds | 2.0 Baths | 793 Sqft

1909 S ATLANTIC AVENUE 511 & 512, Daytona Beach, FL, 32118

2 Units for the Price of 1 - Fully Remodeled, Fully Furnished, and Steps from the Beach!Welcome to 1909 S. Atlantic Avenue, Units 407 & 408 -- two beautifully remodeled studio units that can be used...

Ad#: 7194626
Added: 01/27/2026 • Updated: 01/27/2026
Ad#: 7194626 • Added: 01/27/2026 • Updated: 01/27/2026
  • «
  • 1
  • ...
  • 4
  • 5
  • 6
  • 7
  • ...
  • 9
  • »
Click to activate
|

: Daytona Beach Real Estate Agent Info

About Daytona Beach

Request Information
By proceeding, you consent to receive calls and texts to the number you provided, including email, marketing and auto notifications from DHN (linked to page that may discreetly list DHN Realty as an option), its affiliates and real estate professionals such as Brokers, Listing Agents, Buyers Agents, and local referral partners about your inquiry and other home-related matters, but not as a condition of any purchase. You also agree to our Terms of Use, and to our Privacy Policy. Msg/data rates may apply. This consent applies even if you are on a corporate, state or national Do Not Call list. We may share information about your recent and future site activity with your agent to help them better understand what you’re looking for in a property.
Contact Agent
By contacting this agent you agree to these Terms and Conditions.
Share this Ad
Link copied
SEARCH STATES
Alabama Alaska Arizona Arkansas California Colorado Connecticut Delaware Florida Georgia Hawaii Idaho Illinois Indiana Iowa Kansas Kentucky Louisiana Maine Maryland Massachusetts Michigan Minnesota Mississippi Missouri Montana Nebraska Nevada New Hampshire New Jersey New Mexico New York North Carolina North Dakota Ohio Oklahoma Oregon Pennsylvania Rhode Island South Carolina South Dakota Tennessee Texas Utah Vermont Virginia Washington West Virginia Wisconsin Wyoming
SERVICES
Buy Advertise
COMPANY
Testimonials About Us Office Locations
SUPPORT
Help Contact Us
ADDITIONAL MARKETS
LakeHouse.com MountainHomes.com BeachHouse.com GolfHomes.com
SUBSCRIBE
Receive notifications for new listings
Subscribe

Dream Home Network Inc.

is committed to ensuring digital accessibility and property listings for individuals with disabilities. All information provided is deemed reliable but is not guaranteed and should be independently verified. We are continuously working to improve the accessibility of our web experience for everyone, and we welcome feedback and accommodation requests. If you wish to report an issue or seek an accommodation, please let us know.

Dream Home Network Inc. Sells leads to DHN Realty Inc. who holds real estate brokerage licenses in Alabama. Listing agents will be sent notification copy of leads on their listings where Dream Home Network Inc. is provided listings via our Feed Provider as required.

© 1997 - 2026 Wheelchair-accessible Housing & Universal Design Homes at Barrier Free Home
Part of Dream Home Network, Inc.
Last updated on 2026.03.01
Terms & Policy