$255,000
440 Raintree Court 1M, Glen Ellyn, IL, 60137
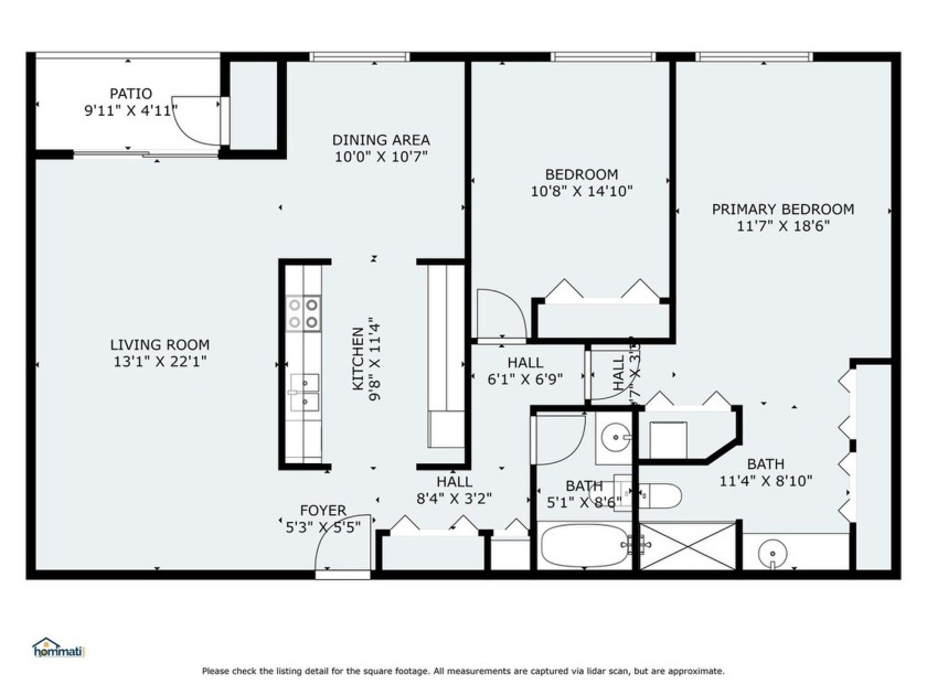
Don't miss this updated 2 bedroom, 2 bath Raintree condo situated on the FIRST FLOOR and featuring IN UNIT LAUNDRY and a HEATED GARAGE SPACE. This unit is bright and sunny and features an updated...
Listed by Lisa Cleaver at RE/MAX Suburban • 630-790-1776
$184,930
470 Raintree Court 3L, Glen Ellyn, IL, 60137
Spacious one-bedroom condo in the desirable Raintree subdivision featuring an elegant kitchen with granite countertops, a new stainless steel refrigerator and microwave installed in September, and an...
Listed by Carla Giordano at RE/MAX Action • 800-276-2600