Photo Gallery
$217,800
3
Beds
2
Baths
1,352
Sqft
100 WATERWAY Avenue, Satsuma, Florida, 32189
By contacting this agent you agree to these Terms and Conditions.
MLS# 2119986
Affordable Canal-Front Living Near Dunns Creek-Discover the
$217,800
100 WATERWAY Avenue, Satsuma, Florida, 32189
3
Beds
2
Baths
1,352
Sqft
0.680
Acres
$217,800
100 WATERWAY Avenue, Satsuma, Florida, 32189
3 Beds
2 Baths
1,352 Sqft
0.680 Acres
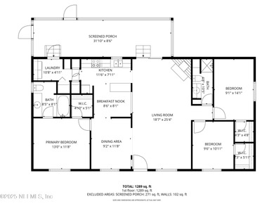
Affordable Canal-Front Living Near Dunns Creek-Discover the perfect blend of comfort and convenience in this cozy 3-bedroom, 2-bath doublewide home with direct canal access to Dunns Creek, Lake Crescent, the St. Johns River, and beyond. Bring your boat and fishing gear-this property includes a dock (needs TLC) and covered boathouse with lift, making it easy to enjoy days on the water. Inside, the spacious living room features a wood-burning fireplace, ideal for cozy winter evenings. Step out onto the 31.10 x 8.6 screened back porch to unwind and listen to the songs of native birds. A small, fenced area in the backyard provides a safe space for pets or children to play, along with a 2-car garage and workshop. Situated on a corner lot, this home offers quick access to downtown Palatka, St. Augustine, and nearby beaches-a wonderful opportunity for affordable waterfront living in a peaceful setting. Priced to sell !!
13 days
on BarrierFreeHome.com
2
views
0
saves
Accessibility Features
Accessible Approach with Ramp
Property Details
3 Beds
2 Baths
1,352 Sqft
Built 1985
0.680 Acres
No Patio
Off Street, Garage
Electric (Heating), Central
Siding : Frame
Metal Roof
Has Fireplace
$650 Property Tax
St Johns Riverside Community
View More
Location
Contact Information
MARGARET ZAHNER
Coldwell Banker Ben Bates, Inc.
margaret@margaretzahner.com
386-336-1263
Please say you found it on BarrierFreeHome.com. Property courtesy of LHUB
Mortgage Calculator
Home Price
Down Payment
Interest Rate
Loan Type
Principal & Interest
Property Tax
HOA
Home Insurance
Mortgage Insurance
All information provided is deemed reliable but is not guaranteed and should be independently verified.
About Satsuma
Ad Statistics
Ad Number
6918479
Viewed
2 times
Added
Dec 02, 2025
Updated on
Dec 04, 2025
Listing Information
Data Source
Northeast Florida Multiple Listing Service, Inc.
Source Property ID
2119986
Disclaimer
All information provided is deemed reliable but is not guaranteed and should be independently verified.
Compliance
Listing Agent: MARGARET ZAHNER, Coldwell Banker Ben Bates, Inc., 386-336-1263, 386-328-6716
Listing Site, Listing Status: Active
Copyright © 2025 Northeast Florida Multiple Listing Service, Inc.. All rights reserved. All information provided by the listing agent/broker is deemed reliable but is not guaranteed and should be independently verified.
Copyright © 2025 Northeast Florida Multiple Listing Service, Inc.. All rights reserved. All information provided by the listing agent/broker is deemed reliable but is not guaranteed and should be independently verified.
Request Information
Start advertising today
Explore options for real estate agents and homeowners advertising on BarrierFreeHome.com
Sell Your Home
Explore Similar Properties
