Photo Gallery
$164,900
0
Beds
0
Baths
2,366
Sqft
1213 N 1st Ave, Laurel, Mississippi, 39440
By contacting this agent you agree to these Terms and Conditions.
MLS# 37131
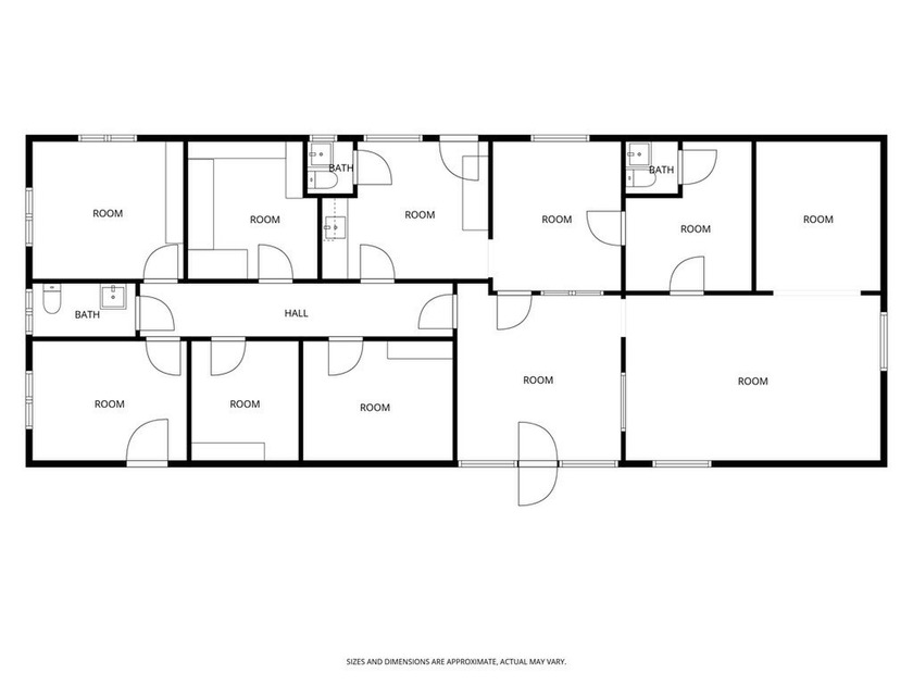
This commercial building is zoned I-1 and previously was used as
$164,900
1213 N 1st Ave, Laurel, Mississippi, 39440
0
Beds
0
Baths
2,366
Sqft
0
Acres
$164,900
1213 N 1st Ave, Laurel, Mississippi, 39440
0 Beds
0 Baths
2,366 Sqft
0 Acres
This commercial building is zoned I-1 and previously was used as the office building to manage the self storage units beside the office. The self storage units do not convey in the sale and a new survey to be performed. The building holds a lobby area, 7 offices, a break room with a kitchen, 3 bathrooms and a store room. This property can be used for multiple business ventures. Call us today to view in person.
127 days
on BarrierFreeHome.com
7
views
0
saves
Accessibility Features
Accessible Approach with Ramp
Property Details
0 Beds
0 Baths
2,366 Sqft
Built 0
0 Acres
No Patio
See Remarks (Heating)
Siding : Brick
Other Roof
Jones County
See More Details
Location
Mortgage Calculator
About Laurel
Ad Statistics
Ad Number
7037624
Viewed
7 times
Added
Sep 24, 2025
Updated on
Jan 19, 2026
Listing Information
Data Source
Laurel Board of Realtors
Source Property ID
37131
Disclaimer
All information provided is deemed reliable but is not guaranteed and should be independently verified.
Compliance
Listing Agent: Courtney Edwards, Red Fox Realty, LLC, 601-466-7925, 601-580-2772 Listing Site, Listing Status: Active
Copyright © 2025 Laurel Board of Realtors. All rights reserved. All information provided by the listing agent/broker is deemed reliable but is not guaranteed and should be independently verified.
Copyright © 2025 Laurel Board of Realtors. All rights reserved. All information provided by the listing agent/broker is deemed reliable but is not guaranteed and should be independently verified.
Request Information
Start advertising today
Explore options for real estate agents and homeowners advertising on BarrierFreeHome.com
Sell Your Home
Explore Similar Properties
No similar properties found.
