Photo Gallery
$1,240,000
196 HAVEN BEACH DRIVE, Indian Rocks Beach, Florida, 33785
Stunning Waterfront Property in a Gated Community Built
196 HAVEN BEACH DRIVE, Indian Rocks Beach, Florida, 33785
Accessibility Features
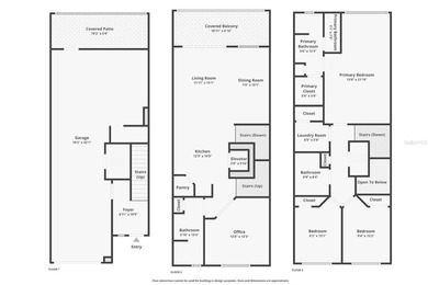
Property Details
Location
Contact Information
Mortgage Calculator
About Indian Rocks Beach
Ad Statistics
Listing Information
Disclaimer
Compliance
Copyright © 2025 Stellar MLS. All rights reserved. All information provided by the listing agent/broker is deemed reliable but is not guaranteed and should be independently verified.
Request Information
Start advertising today
Explore Similar Properties
$1,235,000
2200 BAY BOULEVARD B, Indian Rocks Beach, FL, 33785
Stunning New Construction Townhouse Just 2 blocks from Indian
Listed by Manuel De San Martin at LPT Realty, LLC.
407-990-2235 • turealestateflorida@gmail.com
$1,225,000
2518 CORAL COURT, Indian Rocks Beach, FL, 33785
Live Where Others Vacation -- The Beach Is Calling You!
Listed by Tony Baroni at Keller Williams Realty of Brandon
813-661-2475 • Listing@tonybaroni.com
