Photo Gallery
$270,000
20515 E Country Club Dr 248, Aventura, Florida, 33180
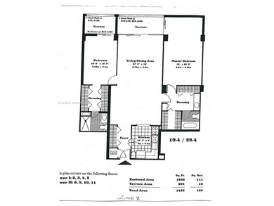
SPACIOUS 1 BED 1.5 BATHS CORNER UNIT IN THE TRANQUIL & CENTRIC
20515 E Country Club Dr 248, Aventura, Florida, 33180
Accessibility Features
Property Details
Location
Mortgage Calculator
About Aventura
Ad Statistics
Listing Information
Disclaimer
Compliance
Copyright © 2025 Miami Association of REALTORS®. All rights reserved. All information provided by the listing agent/broker is deemed reliable but is not guaranteed and should be independently verified.
Request Information
Start advertising today
Explore Similar Properties
$319,000
20335 W Country Club Dr 1608, Aventura, FL, 33180
Views on views. This 16th-floor Coronado beauty puts Aventura at
Listed by Joseph Cohen at Miles Goldstein Real Estate, LLC
786-725-9865
$318,000
20225 NE 34th Ct 719, Aventura, FL, 33180
Welcome to unit 719 at Delvista Towers, where smart investors
Listed by Rita Regev at Eagle Realty LLC d/b/a Keller Williams Eagle Realty
305-343-1214
