Photo Gallery
$825,000
2
Beds
0
Baths
1,240
Sqft
23 Cross Street, Bethel, Maine, 04286
By contacting this agent you agree to these Terms and Conditions.
MLS# 1599339
The Residences at Bethel Station is set to become one of the
$825,000
23 Cross Street, Bethel, Maine, 04286
2
Beds
0
Baths
1,240
Sqft
7.500
Acres
$825,000
23 Cross Street, Bethel, Maine, 04286
2 Beds
0 Baths
1,240 Sqft
7.500 Acres
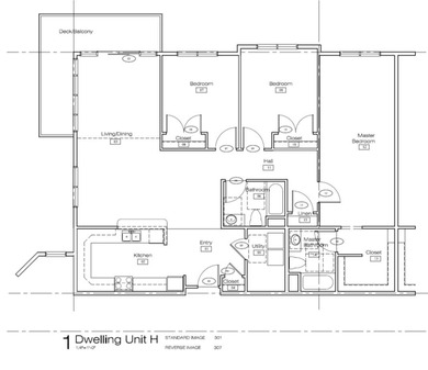
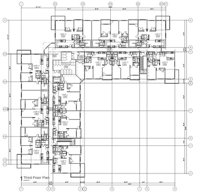
The Residences at Bethel Station is set to become one of the most sought-after living spaces in the picturesque Bethel area, blending comfort, convenience, and natural beauty. Occupancy expected Winter 2026/2027, this garden-style condominium complex will feature 3 levels and 38 elegantly designed units, each crafted to enhance the living experience. On-site common areas include an outside patio garden, a 1st-floor fitness center, and community room. The complex has 1, 2 & 3 - bedroom condominiums. Each unit's open-concept design fosters a seamless flow between living, dining, and kitchen areas. Large windows invite natural light, and private decks and balconies have perfect vantage points to enjoy Bethel's enchanting landscape. The vibrant community of Bethel Village is known for its shops, dining options, movie theater, museum and a rich array of recreational activities. The proximity to such amenities enhances the overall quality of living, allowing residents to immerse themselves in local culture and community. Outdoor enthusiasts will find year-round activities. Winter offers nearby skiing at the world-class Sunday River Ski and Golf Resort. Summer includes golfing, hiking scenic trails, kayaking and canoeing on the Androscoggin River, and boating on pristine lakes. This diverse array of activities ensures residents always have something exciting to do, regardless of the season. The Residences at Bethel Station is more than just a place to live; it embodies a lifestyle that balances the beauty of nature with modern living conveniences. With its focus on quality, community, and the surrounding area's beauty, The Residences at Bethel Station is destined to become a cherished part of the Bethel landscape, allowing residents the best of indoor comfort and outdoor adventure. Visit our website BethelStation for more information.
41 days
on BarrierFreeHome.com
13
views
0
saves
Accessibility Features
Accessible Elevator Installed
Property Details
2 Beds
0 Baths
1,240 Sqft
Built 2025
7.500 Acres
No Patio
Off Street, RV
Heat Pump (Heating)
Siding : Wood Siding, Composition, Clapboard, Wood Frame
Fiberglass, Shingle Roof
Oxford County
See More Details
Location
Mortgage Calculator
About Bethel
Ad Statistics
Ad Number
7040443
Viewed
13 times
Added
Dec 17, 2025
Updated on
Dec 17, 2025
Listing Information
Data Source
Maine Real Estate Information System, Inc.
Source Property ID
1599339
Disclaimer
All information provided is deemed reliable but is not guaranteed and should be independently verified.
Compliance
Listing Agent: Anthony Donovan, Spectrum Real Estate LLC, 207-329-6732, 207-805-3707
Listing Site, Listing Status: Active
Copyright © 2025 Maine Real Estate Information System, Inc.. All rights reserved. All information provided by the listing agent/broker is deemed reliable but is not guaranteed and should be independently verified.
Copyright © 2025 Maine Real Estate Information System, Inc.. All rights reserved. All information provided by the listing agent/broker is deemed reliable but is not guaranteed and should be independently verified.
Request Information
Start advertising today
Explore options for real estate agents and homeowners advertising on BarrierFreeHome.com
Sell Your Home
Explore Similar Properties
