Photo Gallery
$499,000
0
Beds
0
Baths
1,946
Sqft
3132 NE JACKSONVILLE ROAD, Ocala, Florida, 34479
By contacting this agent you agree to these Terms and Conditions.
MLS# OM699588
Turn-Key Commercial Salon Property - 1.47 Acres on NE
$499,000
3132 NE JACKSONVILLE ROAD, Ocala, Florida, 34479
0
Beds
0
Baths
1,946
Sqft
1.470
Acres
$499,000
3132 NE JACKSONVILLE ROAD, Ocala, Florida, 34479
0 Beds
0 Baths
1,946 Sqft
1.470 Acres
Turn-Key Commercial Salon Property - 1.47 Acres on NE Jacksonville Rd - Ocala, FL
Rare opportunity to own a beautifully remodeled, fully operational commercial property located on high-visibility N. East Jacksonville Rd in Ocala. Zoned B2 and sitting on 1.47 acres, this property offers prime frontage along NE Jacksonville Rd and is situated just outside city limits--giving you more flexibility and fewer restrictions while still enjoying the perks of a central location.
Currently operating as a full-service salon, this turn-key property was completely remodeled in 2019 with major upgrades including new electrical wiring and panel, a new roof, new AC, upgraded hardy board siding, and all new interior finishes. The salon comes fully furnished with everything needed to continue operations immediately. It's on well and septic, but city water hookup is available for those who prefer.
Additional features include:
Sidewalk frontage with paved access
Handicap-accessible parking already in place
Weekly chair rentals at $150/week (week-to-week lease)
Security camera system installed
Large 32x38 carport/barn with water and electric hookups - ideal for expansion or storage
Don't miss this exceptional investment opportunity in a growing area of Marion County. Whether you want to continue the salon business or explore a new concept, this versatile property is ready to generate income from day one.
Schedule your private showing today and unlock the potential of this unique commercial gem!
38 days
on BarrierFreeHome.com
2
views
0
saves
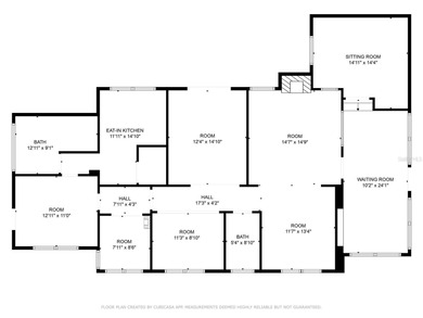
Property Details
0 Beds
0 Baths
1,946 Sqft
Built 1943
1.470 Acres
No Patio
Central
Siding : Frame
Shingle Roof
$2,254 Property Tax
See More Details
Location
Mortgage Calculator
About Ocala
Ad Statistics
Ad Number
7038599
Viewed
2 times
Added
Dec 02, 2025
Updated on
Dec 02, 2025
Listing Information
Data Source
Stellar MLS
Source Property ID
OM699588
Disclaimer
All information provided is deemed reliable but is not guaranteed and should be independently verified.
Compliance
Listing Agent: Nicky Defalco, eXp Realty LLC, 352-461-3277, 888-883-8509
Listing Site, Listing Status: Active
Copyright © 2025 Stellar MLS. All rights reserved. All information provided by the listing agent/broker is deemed reliable but is not guaranteed and should be independently verified.
Copyright © 2025 Stellar MLS. All rights reserved. All information provided by the listing agent/broker is deemed reliable but is not guaranteed and should be independently verified.
Request Information
Start advertising today
Explore options for real estate agents and homeowners advertising on BarrierFreeHome.com
Sell Your Home
Explore Similar Properties
