Photo Gallery
$445,000
3
Beds
3
Baths
2,408
Sqft
370 The Chace, Atlanta, Georgia, 30328
By contacting this agent you agree to these Terms and Conditions.
MLS# 7647521
Welcome to one of the best opportunities in the Sandy
$445,000
370 The Chace, Atlanta, Georgia, 30328
3
Beds
3
Baths
2,408
Sqft
0.043
Acres
$445,000
370 The Chace, Atlanta, Georgia, 30328
3 Beds
3 Baths
2,408 Sqft
0.043 Acres
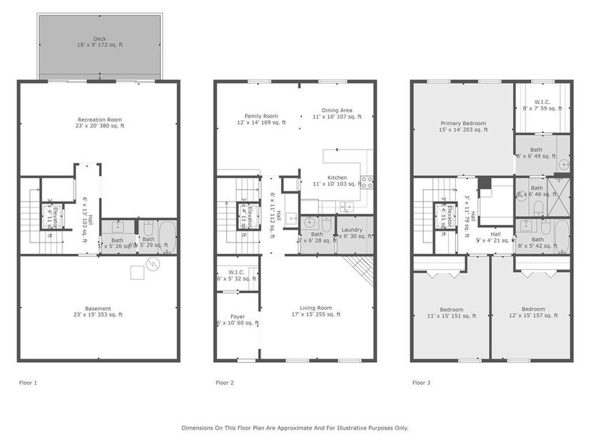
Welcome to one of the best opportunities in the Sandy Springs/Dunwoody area - a home that combines modern updates, spacious living, and everyday convenience. Step inside to a true foyer with an oversized closet, setting the tone for functionality and style. The fireside living room is warm and inviting, filled with natural light and perfect for relaxing or entertaining. The heart of the home is the open kitchen, boasting granite countertops, updated appliances, and stylish cabinetry. A dining room area with built in shelves is perfect for formal or casual dining with a flexible breakfast area just off the kitchen that could also serve as a cozy keeping room or sitting space. The primary suite is a peaceful retreat, featuring a spacious bath with separate his and her vanities and a generous walk-in closet. Two additional bedrooms provide plenty of versatility for children's rooms, guest accommodations, or a dedicated home office. All secondary baths and the wet bar have been tastefully updated with granite and modern fixtures, creating a cohesive, move-in-ready design. Storage abounds on the upper level, including a large walk-in cedar closet for seasonal wardrobes and valuables. The finished terrace level expands your living options with a flex room (potential bedroom), a family room, and a full bath - ideal for a guest suite, teen retreat, or in-law space. Step outside to a large deck overlooking wooded green space, offering privacy and a peaceful outdoor escape. You'll also find new LVP flooring and approximately 500 sq. ft. of unfinished storage, perfect for seasonal items or future customization. One of this home's most unique and desirable features is the elevator, providing effortless access to all three levels - a rare convenience in this price point and location. A 2 car covered carport is also an extra bonus for this townhome. dSituated in a highly sought-after neighborhood, this home offers easy access to Perimeter Mall, Dunwoody Village, GA-400, and I-285, as well as parks, trails, and top-rated schools. With its thoughtful updates, versatile floor plan, and prime location, this property truly represents the best value in Sandy Springs/Dunwoody. **ASK ABOUT BUYER INCENTIVES** **RENTAL PERMITS AVAILABLE- LEASING CAP HAS NOT BEEN MET**
45 days
on BarrierFreeHome.com
15
views
0
saves
Accessibility Features
Accessible Elevator Installed
Property Details
3 Beds
3 Baths
2,408 Sqft
Built 1980
0.043 Acres
No Patio
Carport
Central, Forced Air, Electric (Heating), Zoned
Siding : Brick 4 Sides
Composition Roof
Has Fireplace
$4,666 Property Tax
Autumn Chace Community
Fulton County
See More Details
Location
Mortgage Calculator
Ad Statistics
Ad Number
7034928
Viewed
15 times
Added
Dec 20, 2025
Updated on
Dec 20, 2025
Listing Information
Data Source
First Multiple Listing Service, Inc.
Source Property ID
7647521
Compliance
Listing Agent: PEGGY PFOHL, Keller Williams Realty Atlanta Partners, 678-775-2600, 678-775-2600 Listing Site, Listing Status: Pending
Copyright © 2025 First Multiple Listing Service, Inc.. All rights reserved. All information provided by the listing agent/broker is deemed reliable but is not guaranteed and should be independently verified.
Copyright © 2025 First Multiple Listing Service, Inc.. All rights reserved. All information provided by the listing agent/broker is deemed reliable but is not guaranteed and should be independently verified.
Request Information
Start advertising today
Explore options for real estate agents and homeowners advertising on BarrierFreeHome.com
Sell Your Home
Explore Similar Properties
