Photo Gallery
$2,974,500
4
Beds
5
Baths
2,874
Sqft
605 E Lake, Cape May Point, New Jersey, 08212
By contacting this agent you agree to these Terms and Conditions.
MLS# 253516
This lake-view corner, new-construction home is situated on a
$2,974,500
605 E Lake, Cape May Point, New Jersey, 08212
4
Beds
5
Baths
2,874
Sqft
0
Acres
$2,974,500
605 E Lake, Cape May Point, New Jersey, 08212
4 Beds
5 Baths
2,874 Sqft
0 Acres
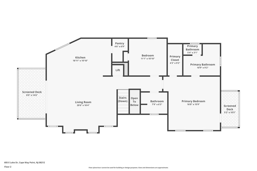
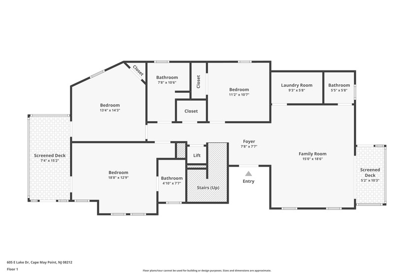
This lake-view corner, new-construction home is situated on a rare, oversized lot and offers 2,874 square feet of living space, not including the four screened porches, a double-wide driveway, and a spacious porcelain patio and walkway. This 5-bedroom, 4.5-bathroom upside-down layout home with an elevator, built by the renowned FX Construction, features numerous upgrades as listed in the exhibit. The first floor includes an open foyer with elevator access, three bedrooms--one being a first-floor suite--two designer bathrooms, a laundry room, and a large family room. Upstairs, an open staircase leads to a stunning great room with vaulted and shiplap ceilings, a fireplace, and an open designer kitchen equipped with GE Profile appliances, a built-in refrigerator, and a pantry. The primary suite boasts a private screened porch, vaulted ceiling, a luxurious bathroom with a glass barn door opening to a soaking tub and walk-in shower, and a walk-in closet. The second floor includes an additional guest bedroom and bathroom. Almost finished and close to CO. There is some unused lot coverage so may be possible to add outdoor kitchen, cabana and Firepit. Professional photos will be done in about a week after the painter completes the final coat. Showings start SUNDAY 14th. OPEN HOUSE DECEMBER 20th and 27th
0 days
on BarrierFreeHome.com
1
view
0
saves
Accessibility Features
Accessible Elevator Installed
Property Details
4 Beds
5 Baths
2,874 Sqft
Built 2025
0 Acres
No Patio
Forced Air, Natural Gas, Zoned (Heating)
Has Fireplace
View More
Location
Contact Information
Charity R Clark, ABR, GRI
RESORTS REALTY
charity@caperesortsrealty.com
609-408-2192
Please say you found it on BarrierFreeHome.com. Property courtesy of LHUB
Mortgage Calculator
Home Price
Down Payment
Interest Rate
Loan Type
Principal & Interest
Property Tax
HOA
Home Insurance
Mortgage Insurance
All information provided is deemed reliable but is not guaranteed and should be independently verified.
About Cape May Point
Ad Statistics
Ad Number
6946391
Viewed
1 time
Added
Dec 15, 2025
Updated on
Dec 15, 2025
Listing Information
Data Source
Cape May County Association of Realtors
Source Property ID
253516
Disclaimer
All information provided is deemed reliable but is not guaranteed and should be independently verified.
Compliance
Listing Agent: Charity R Clark, ABR, GRI, RESORTS REALTY, 609-408-2192, 609-884-9070
Listing Site, Listing Status: Active
Copyright © 2025 Cape May County Association of Realtors. All rights reserved. All information provided by the listing agent/broker is deemed reliable but is not guaranteed and should be independently verified.
Copyright © 2025 Cape May County Association of Realtors. All rights reserved. All information provided by the listing agent/broker is deemed reliable but is not guaranteed and should be independently verified.
Request Information
Start advertising today
Explore options for real estate agents and homeowners advertising on BarrierFreeHome.com
Sell Your Home
Explore Similar Properties
No similar properties found.
