Photo Gallery
$240,000
3
Beds
2
Baths
1,395
Sqft
9111 Riverview Drive, New Bern, North Carolina, 28560
By contacting this agent you agree to these Terms and Conditions.
MLS# 100547179
Enjoy the best of coastal living with water views of the Neuse
OpenHouse: Sun Feb 1, 1-2pm
$240,000
9111 Riverview Drive, New Bern, North Carolina, 28560
3
Beds
2
Baths
1,395
Sqft
0
Acres
$240,000
9111 Riverview Drive, New Bern, North Carolina, 28560
3 Beds
2 Baths
1,395 Sqft
0 Acres
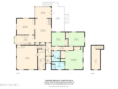
Enjoy the best of coastal living with water views of the Neuse River! This spacious 3-bedroom, 2-bath condo offers 1,397 square feet of comfortable, low-maintenance living in a sought-after waterfront community in New Bern. The kitchen with granite countertops, stainless steel appliances, has a raised bar overlooking the living room and dining area. ed Enjoy the convenience of a nearly new washer, just a few months old, with the dryer included in the sale. Enjoy your own wraparound porch, available with this corner unit. Wake up to serene river views and enjoy a lifestyle that feels like a resort every daymunity amenities include golf, tennis, pickleball, marina access, boat ramp, fishing pier, kayak launch, walking trails, playground, and dog park-perfect for outdoor enthusiasts and active living. Ideally located just minutes from historic downtown New Bern, shopping, dining, and medical facilities, this condo is well-suited as a primary residence, vacation home, or investment opportunity. Experience peaceful surroundings, abundant amenities, and the beauty of the Neuse River all in one exceptional property. Schedule your showing today and start living the waterfront lifestyle.
5 days
on BarrierFreeHome.com
1
view
0
saves
Accessibility Features
Accessible Elevator Installed
Accessible Approach with Ramp
Property Details
3 Beds
2 Baths
1,395 Sqft
Built 1988
0 Acres
No Patio
Assigned, Covered, Parking Lot
Heat Pump (Heating)
Siding : Vinyl Siding, Wood Siding
Shingle Roof
$982 Property Tax
Fairfield Harbour Community
Craven County
See More Details
Location
Mortgage Calculator
About New Bern
Ad Statistics
Ad Number
7182087
Viewed
1 time
Added
Jan 24, 2026
Updated on
Jan 24, 2026
Listing Information
Data Source
HIVE MLS
Source Property ID
100547179
Disclaimer
All information provided is deemed reliable but is not guaranteed and should be independently verified.
Compliance
Listing Agent: Blanca Alster, Keller Williams Realty, 714-395-3131, 252-637-2010 Listing Site, Listing Status: Active
Copyright © 2025 HIVE MLS. All rights reserved. All information provided by the listing agent/broker is deemed reliable but is not guaranteed and should be independently verified.
Copyright © 2025 HIVE MLS. All rights reserved. All information provided by the listing agent/broker is deemed reliable but is not guaranteed and should be independently verified.
Request Information
Start advertising today
Explore options for real estate agents and homeowners advertising on BarrierFreeHome.com
Sell Your Home
Explore Similar Properties
