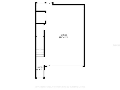
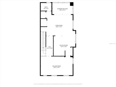
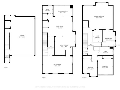
Photo Gallery
$475,000
9610 BAY GROVE LANE, Tampa, Florida, 33615
One or more photo(s) has been virtually staged. FORMER MODEL +
9610 BAY GROVE LANE, Tampa, Florida, 33615
Contact Information
Buyer's Agent
Listing Agent
Accessibility Features
Property Details
Location
Mortgage Calculator
About Tampa
Ad Statistics
Listing Information
Disclaimer
Request Information
Start advertising today
Explore Similar Properties
$540,000
2611 BAYSHORE BOULEVARD 501, Tampa, FL, 33629
Welcome to The Bayshore Diplomat -- one of South Tampa's most
Listed by Elizabeth Martinez at Dalton Wade, Inc.
813-293-3613
$519,000
700 S HARBOUR ISLAND BOULEVARD 240, Tampa, FL, 33602
MOTIVATED SELLER, Seller will contribute towards buyers closing
Listed by Stephen Maggio at Impact Realty Tampa Bay
585-507-1440
